








Balmoral
5 Bed | 319.5m2
Kit Cost: £TBC | Frontage:25.2m
This design is a spacious and elegant residence that boasts five bedrooms and a frontage of 25.2 meters, offering a grand living experience.
As you step inside, a striking grand staircase welcomes you, setting the tone for the home’s luxurious ambiance. To the right, a family room, a generously sized lounge, and a conveniently located accessible bathroom create a welcoming atmosphere. The dining room and kitchen, complete with an adjoining utility room, provide a seamless flow, leading to a double integral garage for added convenience. Additionally, one of the five bedrooms is situated on this floor, offering flexibility in usage.
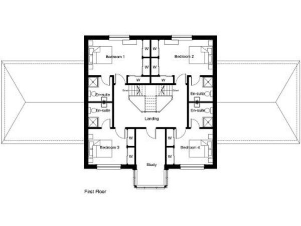
Upstairs, the four remaining bedrooms exude comfort and style, each featuring built-in wardrobe space and ensuite bathrooms, catering to both practicality and sophistication in this thoughtfully designed home
Related products
-
Classic Homes
Keith
3 Bed | 163.6m2
-
Classic Homes
Brechin
3 Bed | 137.8m2
-
Classic Homes
Eilean Donan
3 Bed | 196.6m2
-
Classic Homes
Strathnaver
3 Bed | 150.7m2




