





Classic Homes
Lochside
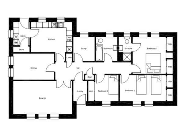
3 Bed | 124.5m2
Kit Cost: £TBC | Frontage: 16.8m
This spacious ‘T’ shaped three-bedroom home has the added benefit of a study. From the front entrance lobby, a glazed door leads to the generously sized hall with coats cupboard.
A pair of glass doors lead into the large well-proportioned lounge and a separate dining room. The kitchen offers the potential for a breakfast area and gives access to a utility, with a store, and the back door. The three double bedrooms incorporate built-in wardrobes and the master bedroom has an en-suite shower room. An optional integral garage can be added to the bedroom gable.
Category: Classic Homes
Related products
-
Classic Homes
Armadale
3 Bed | 173.2m2
-
Classic Homes
Wick
2 Bed | 66.4m2
-
Classic Homes
Strathnaver
3 Bed | 150.7m2
-
Classic Homes
Kintail
2 Bed | 110.5m2




