








Classic Homes
Cawdor
3 Bed | 228.9m2
Kit Cost: £TBC | Frontage:25.2m
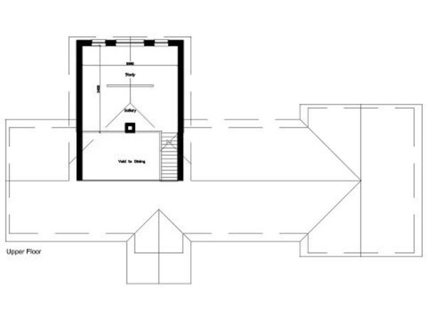
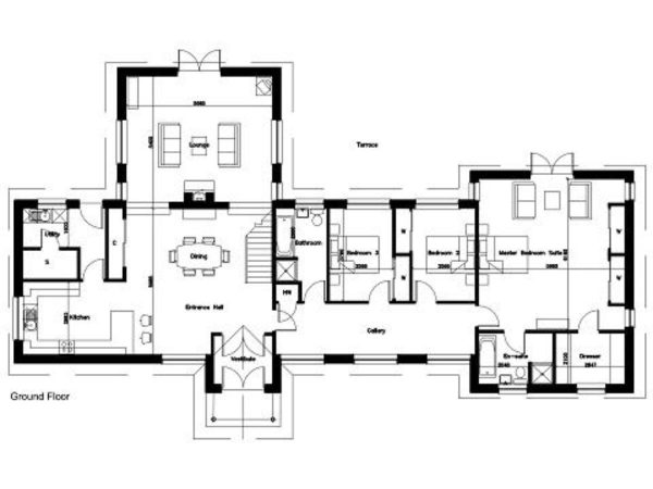
Boasting three bedrooms, the master suite stands out with its walk-in closet and ensuite bathroom, providing a luxurious retreat within the home. This design offers spacious living arrangements. Upon entering through the welcoming vestibule, residents are greeted by a grand entrance hall that leads through the spacious dining area to a staircase, guiding them to a captivating gallery above the lounge.
Category: Classic Homes
Related products
-
Classic Homes
Kincraig
2 Bed | 77.1m2
-
Classic Homes
Assynt
3 Bed | 133.1m2
-
Classic Homes
Brodie
3 Bed | 146.3m2
-
Classic Homes
Eilean Donan
3 Bed | 196.6m2




