








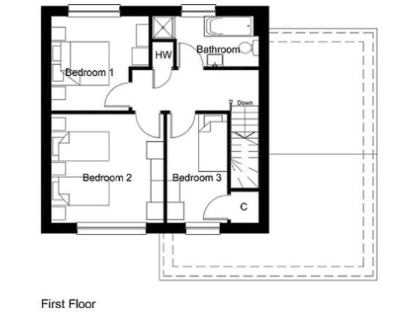
Classic Homes
Elgin
3 Bed | 135.8m2
Kit Cost: £TBC | Frontage: 11.4m
This design effortlessly blends modern aesthetics with functional living spaces. The ground floor is thoughtfully designed, featuring a convenient shower room, a spacious living room, a dining room that seamlessly connects to the kitchen, and an adjoining utility area. Adding to its appeal, there is also a garage. The first floor features the bedrooms and an additional bathroom.
Category: Classic Homes
Related products
-
Classic Homes
Strathnaver
3 Bed | 150.7m2
-
Classic Homes
Kirriemuir
3 Bed | 137.8m2
-
Classic Homes
Keith
3 Bed | 163.6m2
-
Classic Homes
Torridon
2 Bed | 93.0m2




