








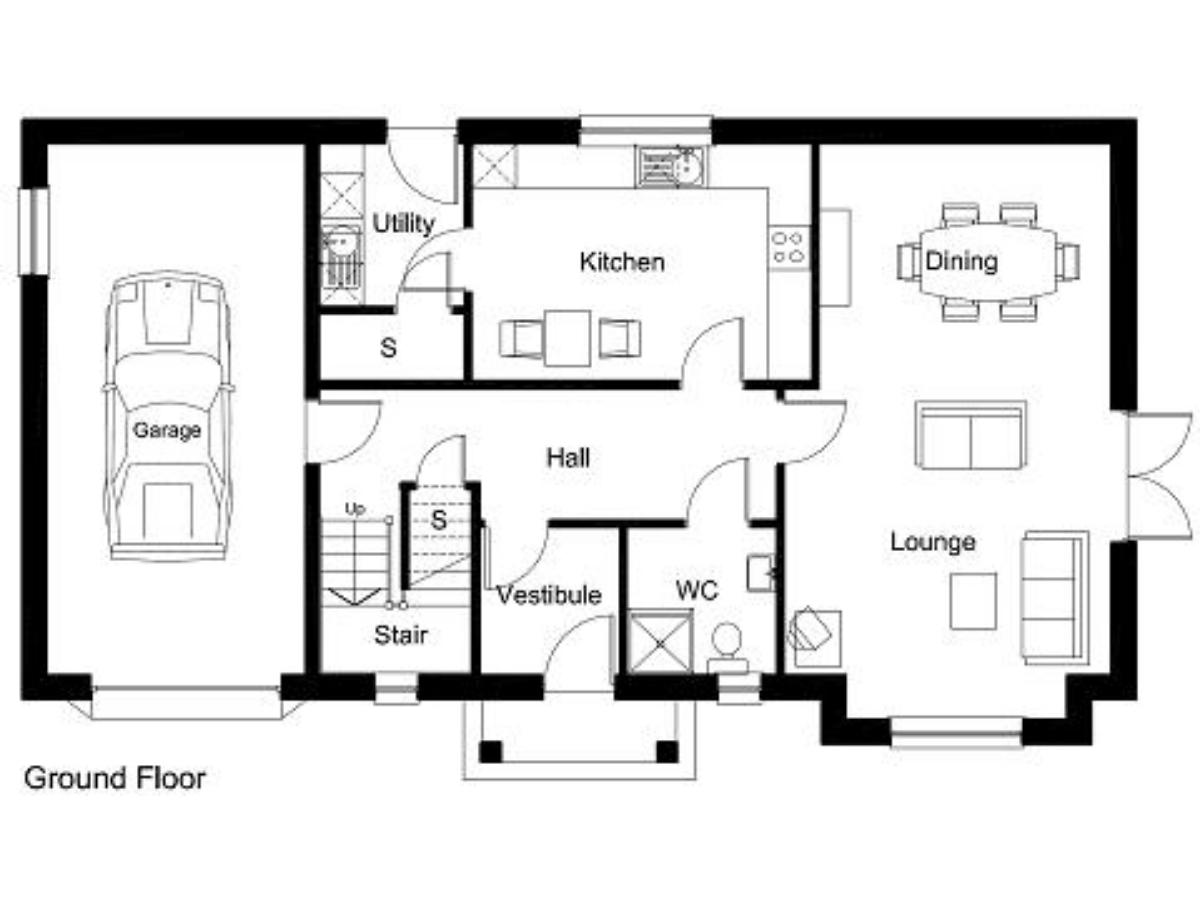
Classic Homes
Huntly
4 Bed | 210.3m2
Kit Cost: £TBC | Frontage:15.0m
This design is a spacious and modern residence offering four bedrooms. The ground floor is designed for comfort and functionality, featuring a large open-plan lounge/dining room that seamlessly connects to a kitchen with an adjoining utility room. Additionally, the ground floor includes a bathroom and an integral garage for convenience. The bedrooms are upstairs, with two of them boasting ensuite bathrooms for added luxury. One of the bedrooms is versatile and can be easily converted into a study or home office. Completing the upper level is another bathroom, ensuring ample facilities for the entire household.
Category: Classic Homes
Related products
-
Classic Homes
Denver
3 Bed | 140.6m2
-
Classic Homes
Keith
3 Bed | 163.6m2
-
Classic Homes
Stornoway
3 Bed | 107.6m2
-
Classic Homes
Eilean Donan
3 Bed | 196.6m2






