








Classic Homes
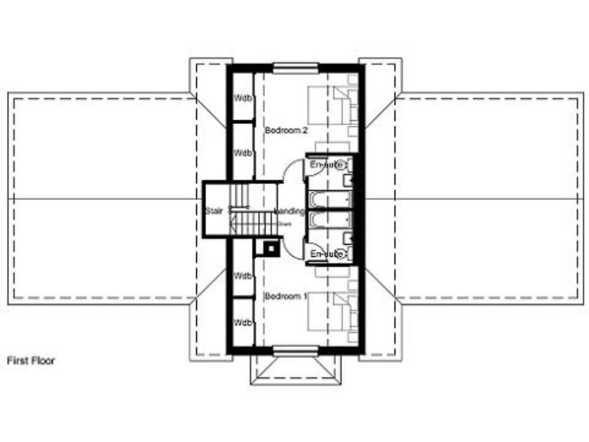
Ousdale
2 Bed | 237.4m2
Kit Cost: £TBC | Frontage: 22.2m
his design boasts a sophisticated and spacious layout, featuring two bedrooms on the upper floor, each equipped with ensuite bathrooms for added convenience. An integral garage adds practicality for its occupants. The grand entrance hall serves as a focal point, welcoming residents and visitors alike with an impressive and inviting ambience.
It incorporates a thoughtful addition—a granny annexe with a separate entrance, kitchen, and accessible bathroom; providing a private and self-contained living space for extended family or guests.
Category: Classic Homes
Related products
-
Classic Homes
Eilean Donan
3 Bed | 196.6m2
-
Classic Homes
Navidale
3 Bed | 81.0m2
-
Classic Homes
Aspen
2 Bed | 137.7m2
-
Classic Homes
Aonach Mor
3 Bed | 122.0m2




