





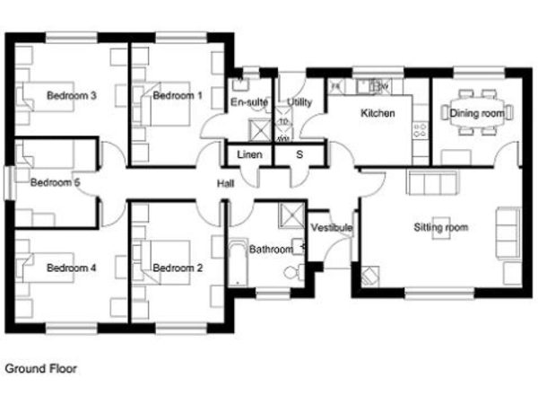
Classic Homes
Kirkwall
5 Bed | 213.5m2
Kit Cost: £TBC | Frontage:18.0m
This design is spacious and well-planned; offering a comfortable and inviting living space. With five bedrooms, it caters to the needs of a larger family or those who value extra space. Upon entering, the sitting room and adjoining dining room greet you to the right, creating a warm and welcoming atmosphere. The kitchen and utility room lie straight ahead, facilitating convenient access. The left wing hosts the bedrooms, including a master bedroom with an ensuite bathroom for added privacy and comfort. Another well-appointed bathroom serves the remaining bedrooms, ensuring practicality and ease of living throughout the home.
Category: Classic Homes
Related products
-
Classic Homes
Keith
3 Bed | 163.6m2
-
Classic Homes
Thurso
3 Bed | 84.3m2
-
Classic Homes
Talisker
2 Bed | 86.1m2
-
Classic Homes
Ousdale
2 Bed | 237.4m2






